

Casa Merbra irradia un encanto atemporal con su estilo tradicional, un revival del Toscano italiano y con su predominio de colores blancos, evoca elegancia y serenidad en cada sutil detalle.

La casa recibe tanto a propios como visitantes con su acogedora fachada de líneas limpias y materiales acordes a su estilo, brindan una primera impresión de sofisticación y sencillez al mismo tiempo, donde se percibe un afán muy aferrado al clasicismo europeo a pesar de estar alienada con la limpieza volumétrica de la modernidad. El amplio jardín exuberante que rodea la casa y que llega a su interior en una terraza central invita a la tranquilidad y a la contemplación, ofreciendo un oasis de serenidad tan requerido por sus habitantes.

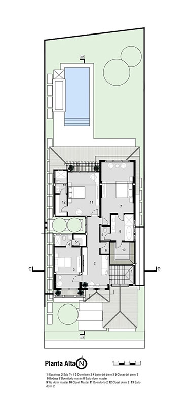
La distribución interior de la casa refleja una meticulosa atención al detalle y una búsqueda constante del equilibrio estético y funcional. Las amplias salas de estar y los espacios de entretenimiento, decorados con muebles elegantes y piezas decorativas cuidadosamente seleccionadas, complementan la composición arquitectónica del exterior y del interior bajo un mismo concepto de trascendencia.

Los espacios al aire libre no se quedan atrás en términos de elegancia y comodidad. Un exuberante jardín paisajístico, una piscina elegante y funcional con una cascada que camufla sutilmente la zona de baños y cto de bombas, aparte la terraza cubierta son el escenario perfecto para disfrutar del clima cálido y las vistas espectaculares de una casa que vive hacia el exterior muy acorde a su latitud.






