

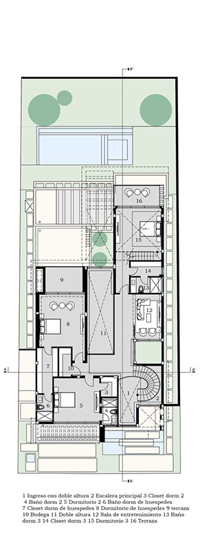
Casa Quera es una de nuestras más importantes obras residenciales, el máster plan de este proyecto se ha desarrollado en todos los ámbitos necesarios para producir arquitectura para un habitad de vanguardia, desde la concepción del diseño arquitectónico al de interiores marcando un muy definido estilo industrial en todos los detalles, todos bajo un mismo concepto de continuidad y fidelidad a la filosofía del estilo y a la esencia de los creadores de este ecosistema.

Es así que en todos y cada uno de los ambientes se ha intencionado transmitir inéditas e interesantes experiencias reinventando el concepto de lo “acogedor”, de modo que para sus residentes como a sus visitantes, “los usuarios” se los invita a conectar con el ideal perpetuo de lo que significa forjar con pasión todo anhelo, y así dar rienda suelta a la materialidad de muchos elementos icónicos que nos dan como resultado una casa cargada de arte y momentos trascendentes perpetuados en su composición de diseño.

En este proyecto se manejaron también como parte de los ámbitos necesarios para un habitad de alta gama y a la vez un hogar inteligente o “Smart-Home” alineado con una filosofía ecológica de conciencia sobre el ahorro y optimización energética, abarcando así de modo principal un agregado de paneles solares de alta eficiencia dispuestos sobre las cubiertas, con su respectivo back up en casos necesarios de déficit o corte del suministro doméstico.

También se está manejando automatización integrada para todos los ambientes desde la iluminación, climatización y demás servicios de conectividad; finalmente se han incluido jardines verticales para la creación de un microclima refrescando áreas exteriores.

El desarrollo de la verdadera arquitectura de vanguardia siempre debe ser un proceso consciente y emotivo conectado con la esencia de la creación y el entorno primordial y natural.






